歪歪扭扭虫虫漫画免费阅读 - 韩漫资源聚合

你好!歡迎光臨江蘇中偉測控儀表有限公司!主營產品:智能渦街流量計插入式電磁流量計液體渦輪流量計

鑄鋼雙轉子流量計

13鑄鋼雙轉子流量計.png
  • 13鑄鋼雙轉子流量計.png
鑄鋼雙轉子流量計屬于目前******上理想一代容積式流量計.是用于管道中液體流量的測量和控制的精密儀表。廣泛應用于石油、化工、冶金、電力、交通、船舶、油庫、碼頭、槽罐車等部門,特別適用于原油、精煉油、輕烴等工

Description:

一、產品概述: 

ZW-LXZ系列鑄鋼雙轉子流量計是目前國內理想一代容積式流量計。是一種設計******、經過精密加工裝配的新型容積式流量計。一對螺旋轉子是計量腔體內*的運動體,起到分割、測算、運送和排泄被測液體的作用。該型號流量計在結構上增加了定位齒輪,使兩只轉子間在轉動時達到彼此互不接觸。該流量計工作時運轉平穩、噪音低、磨損少、準確度高,粘度適應性強,可以允許被測液體中的微細顆粒通過,從而不易卡表。 

二、結構原理:

1、原理: 

ZW-LXZ系列鑄鋼雙轉子流量計對流體流量的測定是在計量腔體內完成的。一對螺旋轉子在液體的壓力下轉動,轉子與計量腔壁間形成的封閉空間(圖陰影部分)每回轉一次排出8倍陰影體積。因此根據這一關系,只要計量轉子回轉的次數,即可計算出流量累積量,根據每秒的轉數,即可測出瞬時流量。

2、結構: 

雙轉子流量計主要由殼體,一對螺旋轉子,磁性聯軸器,減速機構,調整齒輪,計數器及發訊裝置組成.流量計的本體分單體和雙體兩種.單體即殼體和流量計箱為一體;雙體即殼體和流量計為兩體. 螺旋轉子的轉速,通過磁性聯軸器和一系列齒輪組成的減速機構,傳到表頭計數器.磁性聯軸器主要由主動磁鋼和從動磁鋼組成.采用磁性聯軸器可以提高流量計的工作壓力和工作溫度,操作安全,維修方便. 

三、應用場合: 

ZW-LXZ系列鑄鋼雙轉子流量計是用于管道中液體流量的測量和控制的精密儀表。廣泛應用于石油、化工、冶金、電力、交通、船舶、油庫、碼頭、槽罐車等部門,特別適用于原油、精煉油、輕烴等工業液體的計量流量計可現場指示,字碼直接讀數并可配發訊器,輸出電脈沖信號,遠傳到二次儀表或計算機,組成自動控制、自動檢測和數據處理等系統。

四、主要特點: 

1、準確度高、重復性好、運轉平衡、無脈動和壽命長;

2、流量計前后無需直管段,安裝空間小;

3、流量準確度不受壓力和流量變化的影響,性能穩定;

4、可帶溫度、壓力傳感器,對氣體進行溫壓補償;

5、具有脈沖信號,模擬信號,可通過RS485訊接口實現計算機數據的集中和實時管理;

6、功耗低,可用內電池供電,也可外接電源;

7、高分辨率專用液晶顯示屏、讀數直觀方便。

五、技術參數: 

1、可測液體 石油、石油產品、化工介質等; 

2、公稱通徑(mm) 10、15、25、40、50、80、100、150、200、250、300 ; 

3、準確度(%) 0.1、0.2、0.5; 

4、壓力損失 0.4-3 mPa.s時<40KPa; 

5、工作壓力(MPa) 1.6、2.5、4.0、6.3; 

6、溫度范圍(℃) -20~+60、-20~+120、+100~+200、+150~+250; 

7、防護等級 IP65; 

8、環境溫度( -30~+70℃); 

9、介質粘度(0.32~1000mPa.smPa.s); 

六、安裝要求: 

1、環境條件:周圍無腐蝕性流體,機械振動小,灰塵少且遠離熱源的場所。對于配有體積修正儀的智能型流量計,還應有符合規定的環境。 

2、環境溫度:一般不超過-20——+8O℃范圍。 

3、管道條件:在安裝流量計前,管道須***進行清洗和吹掃,清除一切雜物、銹蝕和污垢。連接管道一般應與流量計進出口等口徑同軸線,不得有凸出管壁的凸出物突人管道內。 流量計應采取無應力安裝,充分考慮工作溫度引起的管道應力。 

作為新型容積式流量計,只有滿足其工況條件并按要求正確使用,才能利用其理想性價比,延長使用壽命。因此選型和使用中需注意以下3個問題。 

1、由于采用單殼體結構,zui高壓力不高于2.0MPa,因此高壓長輸管道不宜使用。 

2、非連續使用場合再次使用時,須***從排氣孔排凈計量腔內空氣,以防止產生氣穴而導致計量誤差增大和石墨軸承損壞。 

3、轉子間隙不高于0.2μm,且介質在計量腔內行程較長,對計量介質純凈度要求比其它容積式流量計高,需使用不低于40目的不銹鋼濾網并定期清洗。轉子為鑄鐵材料,介質含水率要求不高于5%,否則會產生銹蝕,影響使用。 

七、安裝注意事項:

1、安裝的方向應使儀表殼體上所示箭頭方向與液體流動方向一致,安裝位置應注意便于讀數

2、儀表盡量安裝在常溫場合,不要安裝在有害氣體及強烈熱輻射的場合,防止儀表計數器部分受損害。

3、儀表中的轉子軸盡可能安裝成水平位置,即刻度盤應安裝成垂直位置(分度“0"應在上面),以減少齒輪與殼體間的摩擦,降低零件的磨損。由于安裝位置不同,為了便于讀數,可將計數器(表頭)旋轉90度或180度。電子表頭的安裝可采用立式安裝方式,表頭與表體成直角狀態,便于讀數。

4、儀表安裝前,管道須*********清洗,在整個管路系統中,若無嚴格的過濾裝置時,應在儀表前安裝過濾器,以防雜質進入表內。

5、應安裝在泵的出口端,流量調節閥應安裝在儀表的下游,使用時先打開上游截止閥,然后緩慢開啟下游流量調節或截止閥。嚴禁突然開啟或關閉。

6、儀表在使用時,應使表內流滿液體。被測液體內不應混有氣體,否則測出氣和液的混合容積測量不準。液體內混有氣體須***在儀表前安裝消氣器。

7、管道中的流量不應急劇增加或減少,應避免管道振動、水力沖擊和壓力急劇波動等現象,否則將影響儀表正常工作。

8、流量超過規定z大流量時,雙轉子隨著轉速提高而磨損增加,且壓力損失急劇增加,應避免使用,低于z小流量,雖仍能計量,但誤差增大,流量計的起動流量約為zui大流量的3%,正常工作流量為z大流量的70%-80%。

9、用于測量高粘度液體時,一般均將液體加熱以降低粘度,然后在管道內流通,當儀表停用后,儀表內充滿的液體冷卻而變粘,如再要啟用,須***用蒸氣或導熱油在表體外部把液體沖熱等方法加熱,待儀表內液體粘度降低后才能使用。否則粘度會咬住傳動零件,致使儀表損壞。

10、被測液體溫度不應高于規定值,超過了儀表甚至會卡住不動。液體溫度變化也會造成粘度影響的附加誤差。另外,溫度增加也造成螺旋狀空間體積增加,使儀表“走得慢",

11、每臺流量計出廠時,均用柴油在室溫條件下標定,常溫下油的密度為:0.84M3/KG,如用戶使用的液體粘度與此相差較大時,可調換雙層齒輪或調整儀表系數來修正誤差。

12、嚴禁用掃線蒸氣和水通過儀表。

八、結構及外形尺寸: 

1、轉子結構 

                      

轉子組合 

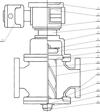
2、智能表總體結構 

              

                            智能表總體結構圖: 

注:1、儀表盤2.電池3.二次表4.連接座5.U型帽6.發訊片7.定位齒輪8.上蓋板9.O型環10.軸11.轉子12.主體13., 上蓋板14.止推軸承15.調節螺釘16.底蓋17.遠傳體。 

3、外型尺寸見下表:  

項目名稱

公稱壓力Mpa

外形尺寸

法蘭連接尺寸

螺栓

L

D

H

H1

D1

D2

D3

X

Y

 h

 t 

 t1

數量

螺紋

ZW-LXZ80

 

1. 6, 2. 5

380

270

690

154

195

160

135



20

3


8

Ml6

4. 0, 6. 4

380

270

690

154

220

172

140

127

128.6

30

7

5

M20

10, 16















ZW-LXZ100

 


380

352

740

190

230

190

160



22

3


8

M20

4. 0, 6. 4

380

352

740

190

260

204

170

157

158.8

32

7

5

S

M22

10, 16















ZW-LXZ150

 

1. 6, 2. 5

560

420

840

220

300

250

218



27

3


8

M20

4. 0, 2. 4

560

420

840

220

330

280

228

216

217.5

38

7

5

1"'

M24

10, 16















ZW-LXZ200

 

1. 6, 2. 5

700

560

890

240

360

310

274



27

3


12

M24

4. 0, 6.4

700

560

890

240

375

320

284

257.5

259

34

7

5

12

M28

10, 16















ZW-LXZ250

 

1. 6, 2. 5

1000

720

1 1 00

270

425

370

330



29

3


1"'

M24

4. 0, 6.4

1000

720

1100

270

445

338

335

324

325.5

48

7

5

16

M28

10, 16















ZW-LXZ300

<,>1.62.5
  1. 6, 2. 5

1000

720

1230 

400

485

430

390



30

4


1 '' 

M24

4. 0, 6.4

1000

720

1230

400

520

451

392

381

328.6

51

7

5

16

M30

九、測量范圍:

LXZ-80

80

9~36

4.5~36

3.6~36

3.6~36

2.8~25

2.8~25

4.5~18

LXZ-80

20~80

10~80

10~100

10~100

6.5~56

6.5~56

5~40

LXZ-100

100

20~80

10~80

10~100

10~100

6.5~56

6.5~56

5~40

LXZ-100

25~100

13~100

15~150

15~150

8.5~80

8.5~80

6.5~55

LXZ-150

150

25~100

13~100

15~150

15~150

8.5~80

8.5~80

6.5~55

LXZ-150

55~225

30`250

25~250

25~250

18~150

18~150

10~100

LXZ-200

200

55~225

30`250

25~250

25~250

18~150

18~150

10~100

LXZ-200

90~360

50~400

40~400

40~400

28~240

28~240

20~160

LXZ-250

250

90~360

50~400

40~400

40~400

28~240

28~240

20~160

LXZ-250

130~540

65~540

60~600

60~600

42~360

42~360

30~240

LXZ-300

300

130~540

65~540

60~600

60~600

42~360

42~360

30~240

LXZ-300

220~800

110~900

95~950

95~950

70~600

70~600

54~450

LXZ-350

350

220~800

110~900

95~950

95~950

70~600

70~600

54~450

十、選型編碼:

基本型號

1

2

3

4

5

6

說明(中偉測控)

公稱通徑

計數器

公稱壓力

特征

發訊器

工作溫度

  ZW-LXZ-E







表示:雙轉子流量計


  8






公稱通徑為8mm


  350






公稱通徑為350mm



  W





無表頭脈沖發訊



  J





機械計數器



  E





電子計數器



  H





回零機械計數器




  1.6




公稱壓力為1.6Mpa




  2.5




公稱壓力為2.5 Mpa




   4




公稱壓力為4.0 Mpa




  6.3




公稱壓力為6.3 Mpa





  304



轉子為304不銹鋼





  316



轉子為316不銹鋼





  C304



殼體、轉子為304不銹鋼





  C316



殼體、轉子為316不銹鋼






  F


脈沖輸出






  I


電流4-20,mA輸出







  A

工作溫度-20~+80







  B

工作溫度-20~+150







  C

工作溫度-20~+250







D

工作溫度-20~+350

十一、設計訂貨選型須知:   

1、流量計名稱、型號。規格、材質等。

2、介質溫度(℃)、工作壓力(Mpa)、流量范圍(m3/h)。

3、介質粘度值或介質名稱。

4、有無特殊要求(如防爆等)。

5、你需要詳細了解有關產品,請來電索取資料。

6、您需要中偉測控的顯示儀表配套時,請參閱相應的說明書,選用合適的型號或由我公司技術人員根據您提供的資料替您設計選型。 

售后服務承諾: 

1、我公司所售中偉雙轉子流量計系列產品在十二個月以內出現質量問題的,負責免費維修。 

2、質保期內如我公司產品出現任何質量問題,我公司負責免費維修或更換。 

3、質保期內如用戶使用不當,造成產品損壞,我公司負責維修,收取損壞部件成本費。 

4、質保期后產品出現質量問題,我公司負責維修,收取損壞部件成本費。  

5、如用戶需我公司現場服務,對省內用戶我公司服務人員12小時內到達現場,省外用戶48小時內到達現場。 


標簽: 鑄鋼雙轉子流量計,雙轉子流量計  
瀏覽:
返回頂部

分享到: